Casa cielo - terra in Vendita a Montalto delle Marche
Zona: Collinare
Classe energetica
EP glnr: 919.15 kwh/㎡
Interessante proprietà, adatta per due famiglie, con corte esclusiva, rimessa e annesso; possibilità di terreno di circa 2,5 ettari.
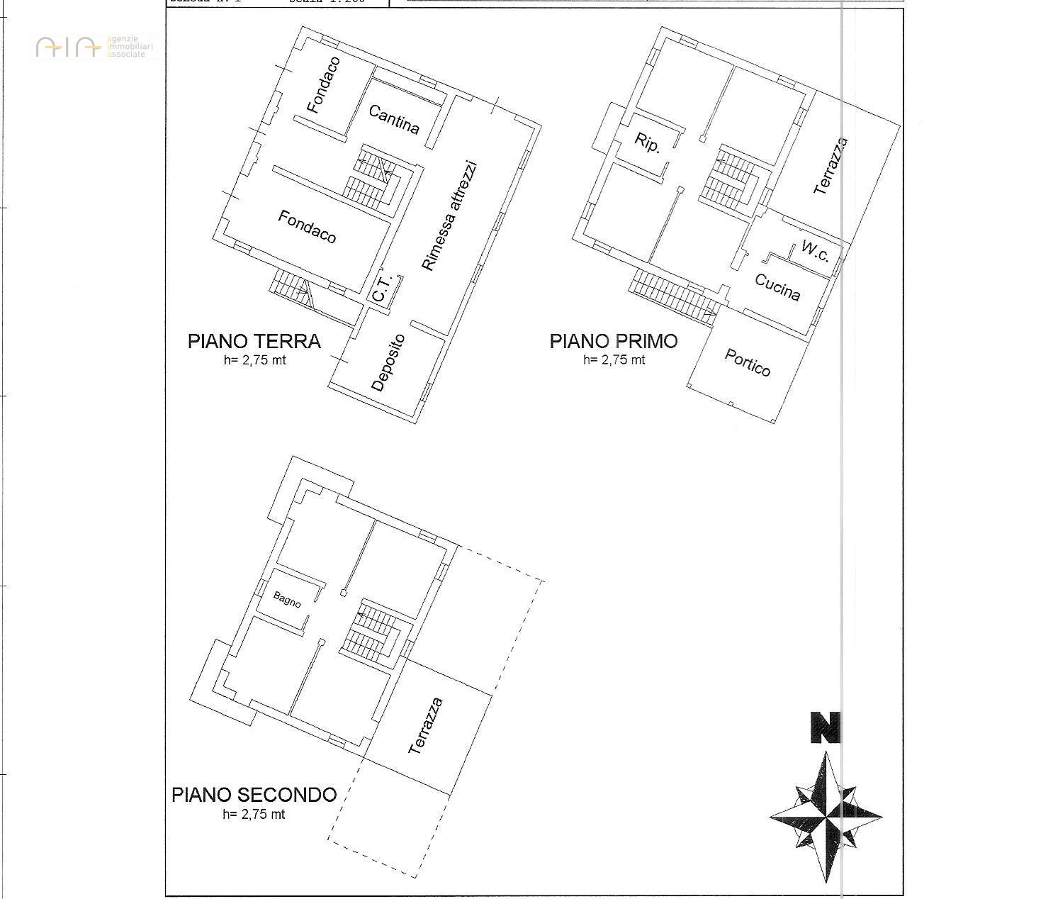
Casa indipendente posta su tre livelli, oltre sottotetto non abitabile; piano terra di circa 190 mq a destinazione fondaci/cantina e rimessa/deposito. I piani primo e secondo di complessivi 240 mq circa, sono a destinazione abitativa composti da cucina, soggiorno e sala da pranzo, due bagni e sei camere da letto. Ingresso attraverso un portico coperto al piano primo oltre terrazzo per complessivi 50 mq circa, scala di accesso interna che collega al piano superiore anch'esso con terrazza di circa 30mq.
Per dimensioni e conformazione la casa potrebbe, previa ristrutturazione e riqualificazione degli spazi, ospitare due o tre appartamenti.
Completa la proprietà un giardino di pertinenza recintato e con cancello d'ingresso, una rimessa/ripostiglio su due piani per complessivi 70 ma ed un annesso; possibilità di acquisto, con prezzo da computare a parte, di un terreno agricolo di circa 2,5 ettari.
L'immobile si presenta con materiali, finiture ed impianti risalenti all'epoca costruttiva e necessita di essere riammodernato con lavori di manutenzione. Pavimentazioni in graniglia, finestre in legno con vetro singolo e persiane; gli impianti sono da controllare, ed eventualmente, aggiornare alle recenti normative.
Facilmente raggiungibile, è l'ideale per chi cerca spazio e riservatezza, godendo di un ampio panorama.
A meno di 1 Km dalla S.P. Valdaso e dalla frazione di Madonna del Lago, in cui troviamo alcuni servizi essenziali, questa abitazione è perfetta per ospitare una o più famiglie e viverci stabilmente.
Posizionata in zona di campagna, localizzazione molto panoramica e comoda; dai suoi affacci si può godere della vista della vallata e delle colline circostanti.
Ultimo aggiornamento 08-10-2024


































































