Casale Colonico Rustico in Vendita a Servigliano
Classe energetica
IPe: 348.779 kwh/㎡
Abitabile da subito, indipendente, 360 mq con annessi e terreno di oltre 7 ettari... INTERESSANTE!!!
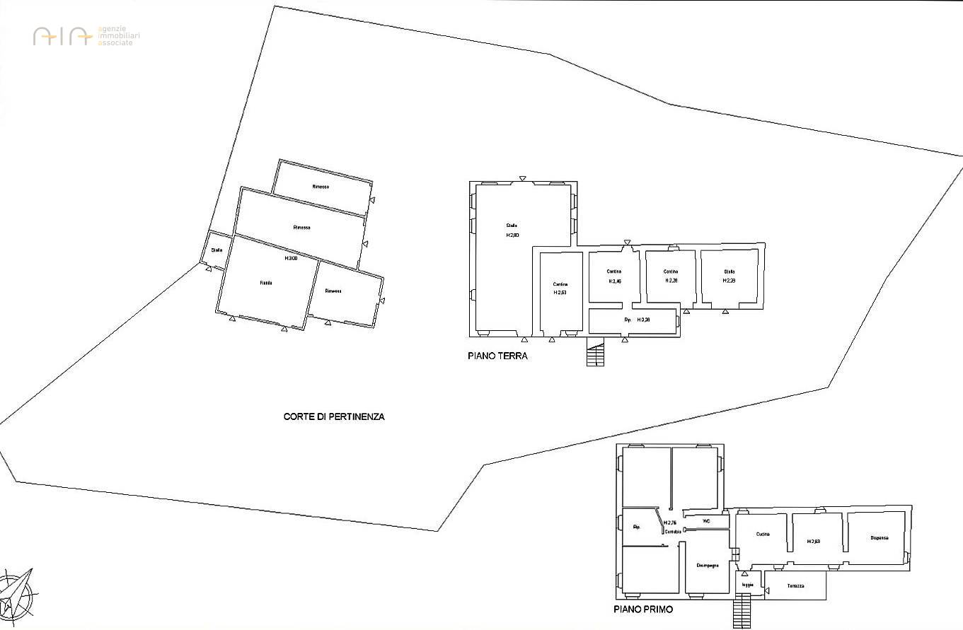
Tipico casale colonico posto su due livelli per complessivi 360 mq circa: piano terra di circa 180 mq a destinazione stalle e cantine; il piano primo, di pari dimensioni, ospita un ampio appartamento composto da cucina abitabile, soggiorno e sala da pranzo, quattro camere da letto ed un bagno oltre ad un terrazzo/loggia per complessivi 17 mq circa.
Immobile si presenta in discrete condizioni, abitabile da subito con pochi accorgimenti di ordinaria manutenzione, gli infissi sono in legno, vetro singolo, con scuri; le pavimentazioni in graniglia sono tipiche dell'epoca costruttiva così come gli impianti, perfettamente manutenuti e funzionanti, eventualmente da aggiornare alle recenti normative.
Parte dell'immobile è stato ristrutturato post-sisma 2016 con rifacimento del tetto e consolidamento della struttura esterna.
Completa la proprietà un appezzamento di terreno agricolo circostante l'immobile di complessivi mq 71300 circa, prevalentemente lavorativo ed in minima parte boschivo, con la presenza di un pozzo.
La proprietà si presta a varie destinazioni, viverci stabilmente grazie alla praticità e tranquillità dell'ubicazione ed alle dimensioni adatte per ospitare comodamente una o due famiglie, per ospitare un'attività ricettiva; grazie anche alla presenza del terreno la proprietà acquista interesse, ottimo investimento.
ATTUALMENTE L'IMMOBILE RISULTA LOCATO fino a novembre 2025
Ultimo aggiornamento 02-04-2025



















































