Appartamento in Vendita a San Benedetto del Tronto
Zona: Porto D'ascoli centrale
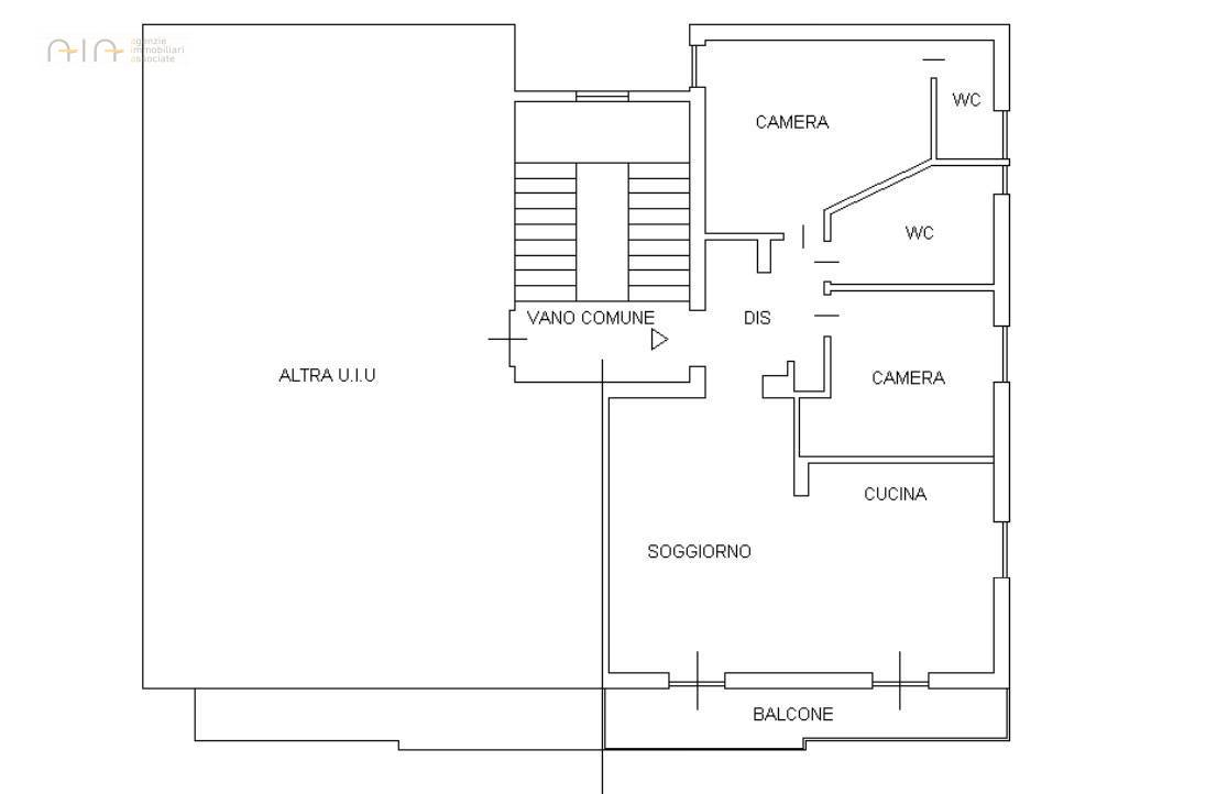
A Porto d'Ascoli proponiamo in Vendita un grazioso Appartamento di 95 mq circa completamente ristrutturato, posto al terzo piano SENZA ascensore, di una palazzina di poche unità immobiliari. L'immobile è così composto: ingresso su disimpegno, soggiorno con cucina a vista dotato di accesso in balcone, proseguendo nella zona notte troviamo due camere da letto matrimoniali e due servizi igienici entrambi finestrati. L'immobile si presenta in ottime condizioni, troviamo un portone d'ingresso blindato, infissi in pvc muniti di doppio vetro, pavimentazione in grès porcellanato, riscaldamento autonomo a pavimento. Conclude la proprietà una soffitta al piano quarto ed un terrazzo condominiale. La soluzione si trova vicina a tutti i servizi e poco distante dal mare.
Ultimo aggiornamento 03-03-2025























