Casale Colonico Rustico in Vendita a Ripatransone
Zona: Santa Maria Della Petrella
Casale colonico disposto su due livelli per complessivi 260 m² circa, situato in splendida posizione panoramica con vista sul mare e sulle colline marchigiane.
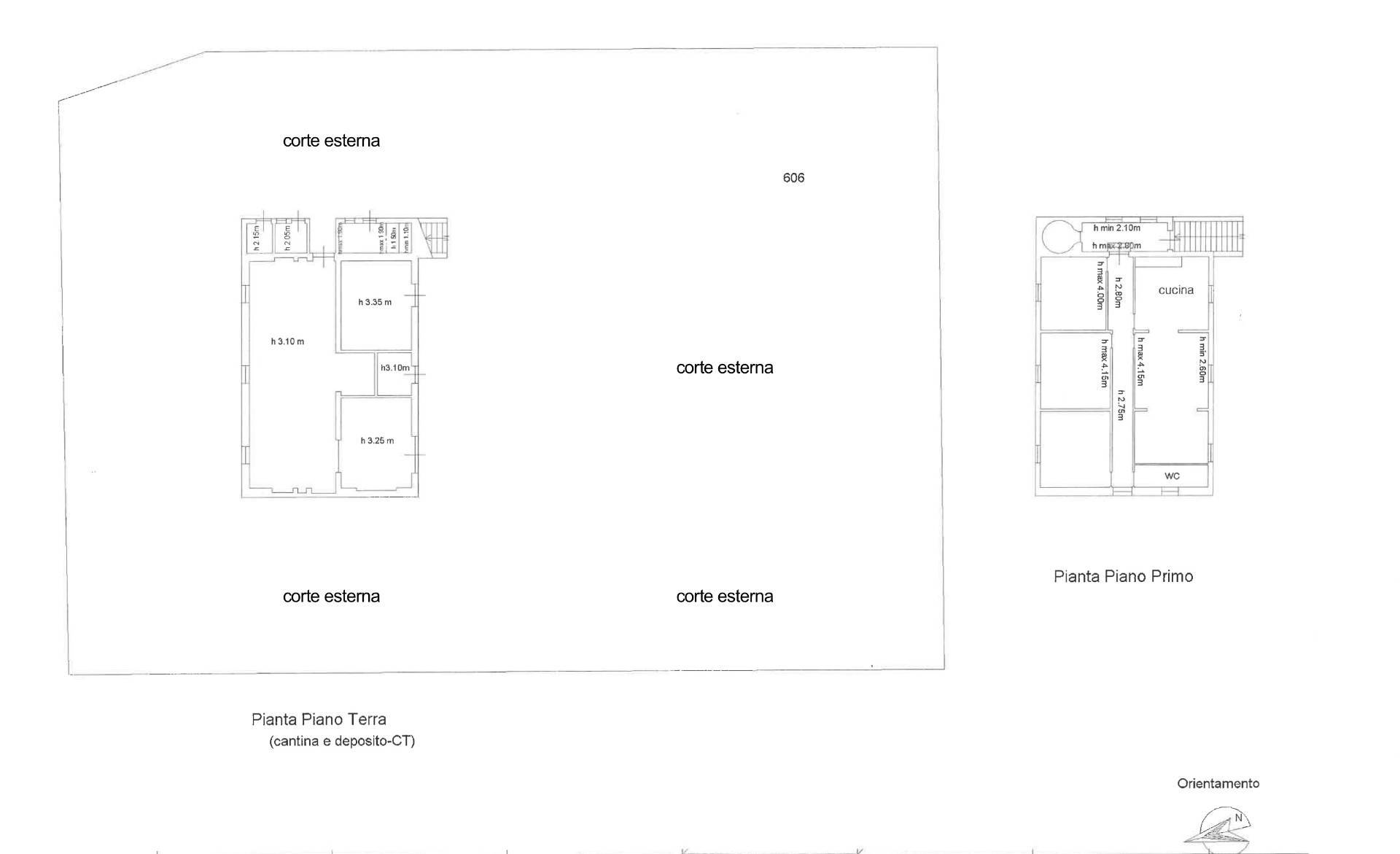
Al piano terra (circa 130 m²) si trovano i locali un tempo adibiti a stalle, rimessa attrezzi agricoli e cantine, spazi oggi perfetti per essere recuperati e trasformati secondo le proprie esigenze.
Una tipica scala esterna marchigiana conduce al piano primo, anch'esso di 130 m² circa, a destinazione abitativa, composto da ingresso, ampio soggiorno, cucina abitabile, quattro camere da letto, bagno e loggetta esterna con forno.
L'edificio, libero su quattro lati, presenta struttura portante in muratura e tetto con travi in legno originali; si trova in condizioni complessivamente da ristrutturare, sia internamente che esternamente, offrendo tuttavia un'eccellente base per un recupero autentico nel rispetto della tradizione rurale marchigiana.
A completare la proprietà, un terreno circostante di oltre 13.000 m², in parte recintato, con vegetazione boschiva e alcune piante da frutto.
La posizione è facilmente accessibile grazie alla strada provinciale asfaltata che arriva fino al cancello d'ingresso: un contesto tranquillo, ma non isolato, nella prima collina a breve distanza dal mare.
Soluzione ideale per chi desidera una residenza immersa nella natura, oppure per chi vuole realizzare una struttura ricettiva di charme nel cuore della campagna marchigiana.
Ultimo aggiornamento 14-10-2025










































