Locale Artigianale / Deposito in Affitto a Grottammare
Zona: Centrale (tra La Ss16 E Ferrovia, Fino Al Fiume Tesino)
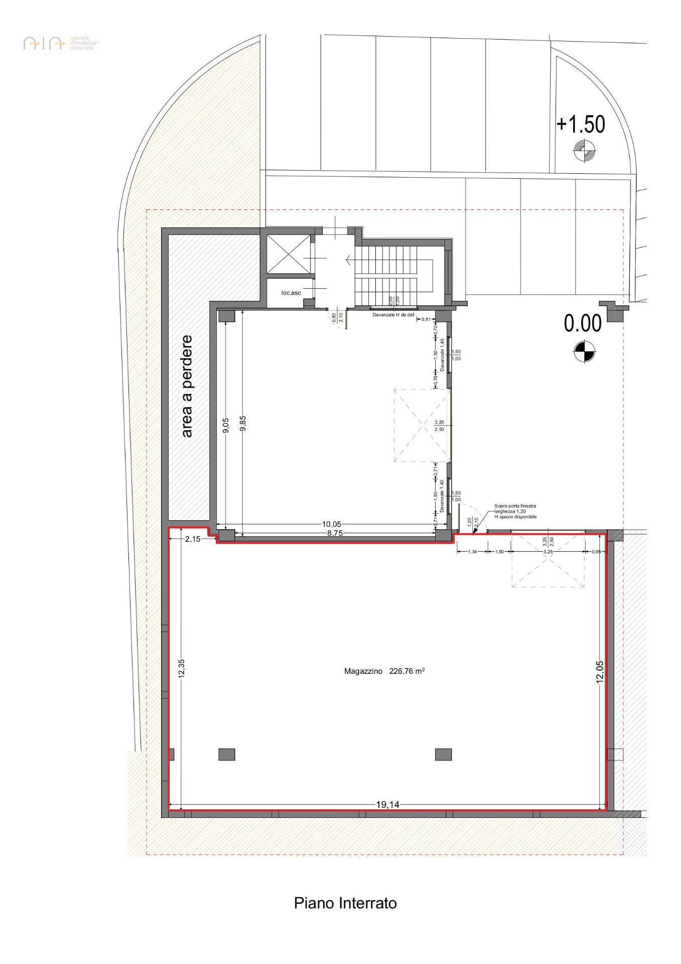
227 mq
Si concede in locazione magazzino/deposito costituito da un unico vano di mq 227 circa sito al piano interrato di una struttura a carattere principalmente direzionale/commerciale, posta in prima fila sulla SS16 a poca distanza dall'uscita autostradale. Il locale, avente altezza interna di 3 metri, ha un comodo accesso carrabile dotato di serranda ad apertura automatica per il carico/scarico del materiale da immagazzinare (non è possibile al suo interno lasciare parcheggiati mezzi motorizzati (auto-van-furgoni-etc..). Disponibilità di parcheggio nell'area antistante il locale.
Informazioni immobile
Codice: 33708
Contratto: Affitto
Tipologia: Locale Artigianale / Deposito
Regione: Marche
Provincia: Ascoli Piceno
Comune: Grottammare
Zona: Centrale (tra La Ss16 E Ferrovia, Fino Al Fiume Tesino)
Prezzo: € 800
Totale mq: 227 mq
Stato conservazione: Ottimo
Mappa immobile
Condividi
Ultimo aggiornamento 27-10-2025













